Трансформатор тока (ТОЛ) ТЛК-СТ-10-13 (2000А)

Каталог продукции завода «Самарский трансформатор»

Документы
Таблица взаимозам...
Скачать
Руководство по эк...
Скачать
3D-модель ТЛК-СТ-...
Скачать
Габаритные и уста...
Скачать
Декларация ТЛК-СТ...
Скачать
Сертификат ТЛК-СТ...
Скачать
Описание:

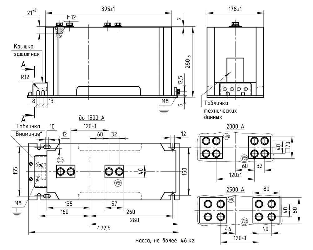
Трансформатор тока (ТОЛ) ТЛК-СТ-10-13 (2000А) в габарите 395х178х280 мм с металлическим основанием и прямоугольными первичными наконечниками с размером 32 мм между отверстиями для крепления подводящих шин. С защитной крышкой вторичных выводов. Увеличенный размер по длине, ширине и по высоте 280 мм (2, 3, 4 и 5 вторичных обмоток). Наконечники 2000А.

Технические параметры трансформаторов тока ТЛК-СТ-10-13 (2000А)
Параметр Значение
Номинальное напряжение, кВ 10
Наибольшее рабочее напряжение, кВ 12
Номинальная частота, Гц 50
Номинальный первичный ток, А 2000
Номинальный вторичный ток, А 1; 5*
Количество вторичных обмоток 1-3

Номинальная вторичная нагрузка обмоток с коэффициентом мощности cos φ2=0,8, ВА:

- для учета и измерения

- для защиты

10*

15*

Класс точности обмоток:

- для учета и измерения

- для защиты

0,2S; 0,2; 0,5S; 0,5

5Р; 10Р*

 Ток односекундной термической  стойкости, кА 0,35-40
 Ток электродинамической стойкости, кА 1,54-100
 Номинальный коэффициент безопасности приборов обмотки для измерения  2-20
 Номинальная предельная кратность обмотки для защиты 10*-20
 Межосевое расстояние первичных выводов, мм  120

   

* стандартное значение

В соответствии с заказом могут поставляться трансформаторы с техническими характеристиками, отличающимися от типовых. Возможны незначительные отклонения размеров.


Документы
Таблица взаимозам...
Скачать
Руководство по эк...
Скачать
3D-модель ТЛК-СТ-...
Скачать
Габаритные и уста...
Скачать
Декларация ТЛК-СТ...
Скачать
Сертификат ТЛК-СТ...
Скачать